THE BUILDING
MENU
CLOSE
Architects’ note:
Retaining memories of a bygone period and projecting our thinking towards the future, the building at 5 Gkoura Street was designed as a synthesis of elements from the past and present. In keeping the building’s original balcony as a point of departure, the current façade abstractly maintains features of classicism and Art Deco from the modernist movement of the 1930’s, while the interior reflects the character of a contemporary exhibition space. The interior’s minimal approach is based on classic design principles, while the combination of varied materials references the disparate eras inherent in the design concept. The awareness of diverse spaces and the continuous interaction between the building’s interior and the multidimensional neighborhood of Plaka was also a key element in the design. Windows that extend vertically across the full height of the building create a continuous dialogue between the space and the peripheral environment. Communication, cohabitation, abstraction, synthesis and diversity remain core design concepts that reflect the multidimensional operations destined for the ARCH building.
The ARCH building was designed by Katerina Vordoni and Fania Sinanioti of VOIS Architects in Athens.
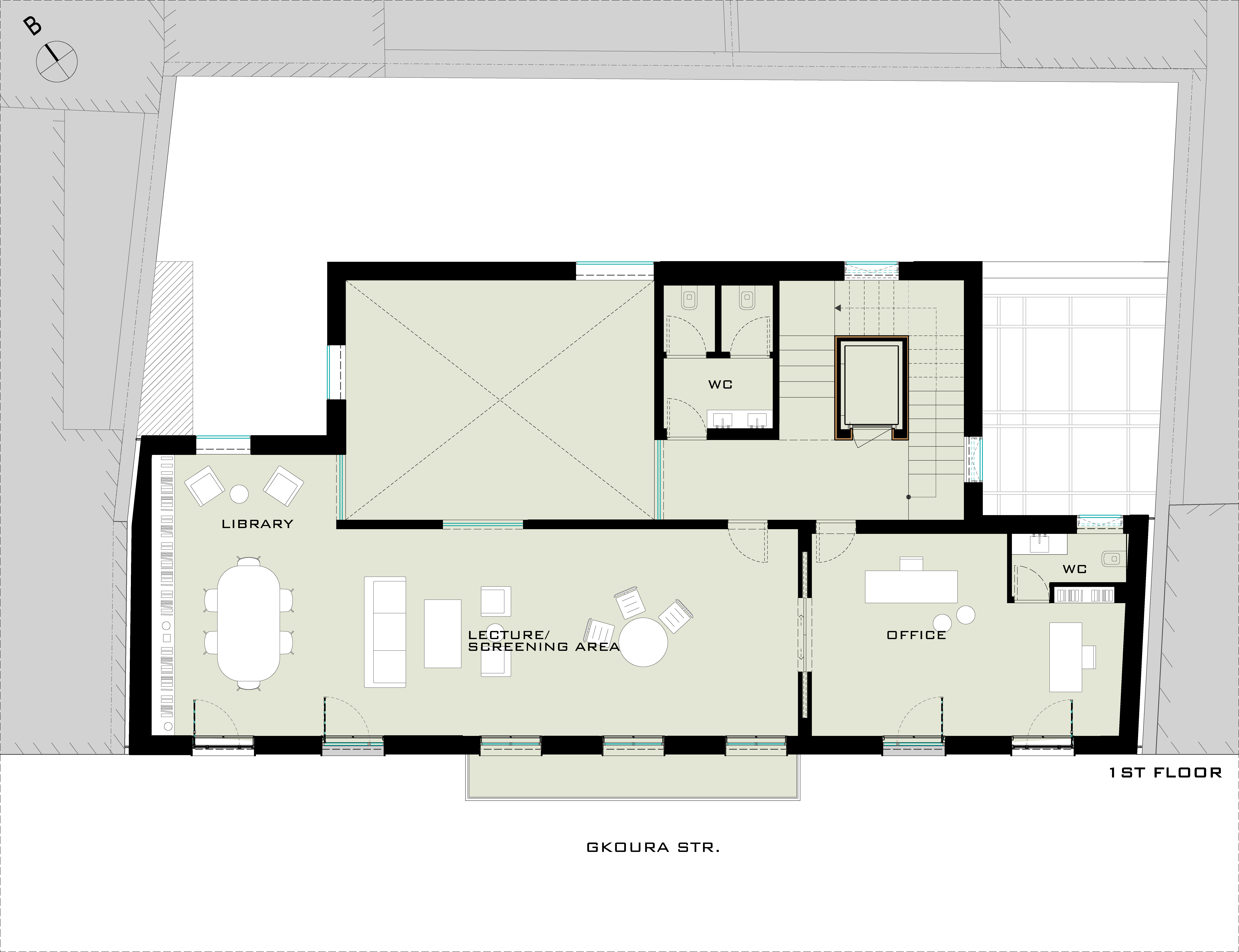
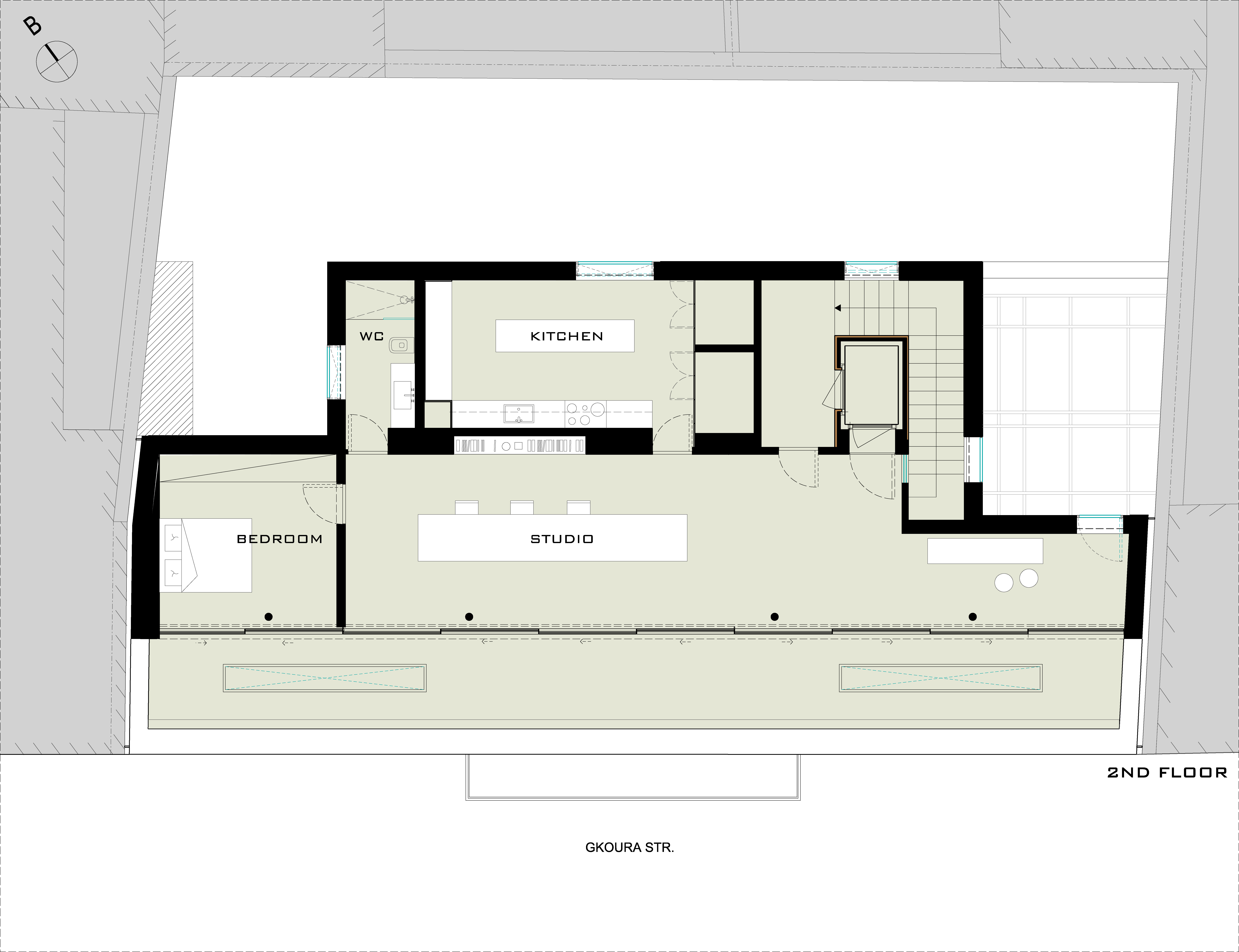
The building includes an exhibition space, workshop area and outdoor patio on the ground floor, a lecture space and public library on the first floor, and a fully equipped apartment on the second floor.
The building offers fully equipped spaces to host a variety of private events. For further information and availability you may contact us at info@archathens.org